Get the week's most popular posts delivered to your inbox.
Our weekly update is free yet priceless and you're less than a minute away from getting the current edition.
In the unlikely event we disappoint, you can unsubscribe with a single click!
Last Updated on January 29, 2018 by teamobn
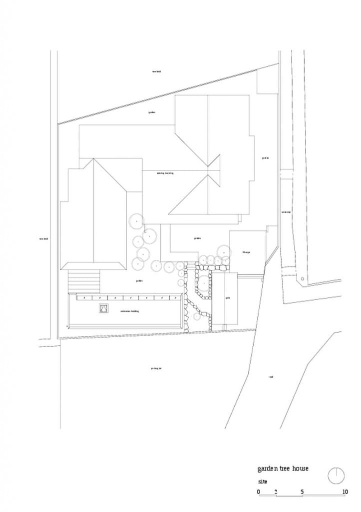
The Garden Tree House – Hironaka Ogawa and Associates
Kagawa, Japan
Build area: 50.9 m2
Year: 2010
The Garden Tree House is not your usual tree house or home. If most tree houses are built around a tree, this one had not just one but two trees built into it.
It was built as an extension of a 35-year-old house for the owner’s daughter and her husband.
Upon inspection of the site, the architect found an Azelkova tree and a Camphor tree right in the middle of it. Both have stood the test of time – 35 years – bearing witness to the family’s history and were very much a part of their daughter’s childhood memories.
The design of the new building however would require for the trees to be removed but the architect thought of a way to keep both and still build the extension. These trees guarded the family for many years, there’s a lot of history in them. Instead of removing them, the trees were made an integral part of the house’s design.
Here’s how the architect did it.
From the architect. ‘These trees looked over the family for thirty-five years. They colored the garden and grew up with the family. Therefore, utilizing these trees and creating a new place for the client became the main theme for the design.
In detail, I cut the two trees with their branches intact. Then I reduced the water content by smoking and drying them for two weeks. Thereafter, I placed the trees where they used to stand and used them as main structural columns in the center of the living room, dining room, and kitchen.
In order to mimic the way the trees used to stand, I sunk the building addition 70 centimeters down in the ground. I kept the height of the addition lower than the main house while still maintaining 4 meter ceiling height.
By the way, the smoking and drying process was done at a kiln within Kagawa prefecture. These two trees returned to the site without ever leaving the prefecture.
The client asked a Shinto priest at the nearby shrine to remove evil when the trees were cut. Nobody would go that far without a love and attachment to these trees.
When this house is demolished and another new building constructed by a descendant of the client hundreds of years from now, surely these two trees will be reused in some kind of form.’
Get the week's most popular posts delivered to your inbox.
Our weekly update is free yet priceless and you're less than a minute away from getting the current edition.
In the unlikely event we disappoint, you can unsubscribe with a single click!


























