Get the week's most popular posts delivered to your inbox.
Our weekly update is free yet priceless and you're less than a minute away from getting the current edition.
In the unlikely event we disappoint, you can unsubscribe with a single click!
Last Updated on January 30, 2018 by teamobn
‘House in Horinouchi’ – Suginami, Tokyo MIZUISHI Architect Atelier
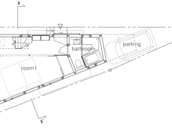
site area: 52.14 m2
building area: 29.07 m2
total floor area: 55.24 m2
Most of us would have difficulty visualizing what a 52m2 (570sq ft) building lot looks like. Think 7 metres x 7 metres (22′ x 22′). Now turn it into a triangle, add some building code challenges and then put a home for three on it! It certainly challenges Western thinking, doesn’t it?

By avoiding the use of internal walls and also adding vertical interest, this home achieves a sense of space much greater than its physical attributes.
Click on any image to start lightbox display. Use your Esc key to close the lightbox. You can also view the images as a slideshow if you prefer ![]()



















If you liked this, you’ll also live viewing these Small Homes…
Get the week's most popular posts delivered to your inbox.
Our weekly update is free yet priceless and you're less than a minute away from getting the current edition.
In the unlikely event we disappoint, you can unsubscribe with a single click!





