Last Updated on February 1, 2018 by teamobn
Amagansett, New York – SG Blocks
Built area: 180m2 (1942 sq. ft.) + 120m2 (1,300 sq. ft.) of decks
Year built: 2011
Photography: Prudential Douglas Elliman
‘The Hamptons’ are the summer and occasional weekend retreat for many of New York’s elite. Located on the eastern end of Long Island, houses regularly sell for $10 million and, sometimes, far more. The home featured here is a minnow having sold for a mere $1.4 million. But what is more unusual, is that it’s a container home.
Named by its developer, The Beach Box, the home stands in stark contrast to the more traditionally styled homes of the area such as this one:
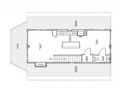
But for most of us, The Beach Box is the more realistic objective with its four bedroom, two and a half bedroom layout. Built off site by SG Blocks and shipped to the site, the home comprises six modules – four on the ground floor and two on the upper.
Insulation is by way of spray foam internally and timber and fibre-cement cladding externally. The home also features low-E glazing and a thermoplastic roof and achieves a high energy efficiency.
Click on any image to start lightbox display. Use your Esc key to close the lightbox. You can also view the images as a slideshow if you prefer 😎
Container homes are only one of the new generation of exciting housing developments. If you are wondering why, consider these points:
Containers:
- meet or exceed structural safety codes
- are very corrosion resistant with seven coats of hard-wearing paint applied during manufacture
- are impervious to water, insects, mold and mildew
- can reduce construction time by up to 40%
- can reduce construction costs by up to 20%
- are green—with the lowest energy utilization in the market
- are perfect for schools, dorms, barracks, hotels and housing
- can be fit out modularly and are easily expandable
- can be built to be fully mobile
- are extreme weather-resistant
As a final consideration, there are enough unloved, empty containers sitting in ports to circle the Equator twice!































